触觉设计|广州214㎡会议大厅空间案例分享
商务办公会议案例
项目背景

1
项目基本情况
首乐定制影音&办公系统,此次走进广州中量,这是一个集合了高端智能化的会议系统案例。
项目广州中量,是一家综合型咨询公司,主要为一些政府决策咨询、司法鉴定、纠纷调解做服务支持,是广东工程造价协会第二、第三届会长单位,也是广东省全过程工程咨询试点单位之一。

2
项目概述
设计单位:广东首乐科技有限公司
项目负责人:郭生锋
工程时长:2个月

3
空间信息说明
为了打造精品,完善服务,全面提升企业的综合实力和竞争力,创造良好的经济效益和社会效益。广州中量对于设计的要点,是希望能在214㎡的演播会议大厅,实现无纸化会议室交互系统,提高工作效率、节约办公资源,使会议办公自动化、信息化。

能为管理严谨的上市企业公司做会议厅的服务支持,使赛宾格外重视,针对客户的需求,也正是当今社会信息化高度发展的形势下,各级机关及集团企业所用来提高工作效率、节约办公资源的重要手段,也成为人们工作办公体现高端质感生活的必经趋势。

在进行现场勘查后了解,这一空间长17.38米,宽12.29米,地处办公楼的中心楼层,地理条件非常好,办公楼户外视野非常好。

项目进程
1
客户整体需求 >>
先来了解下这个会议系统的整体构建,本案是结合多媒体音视频传输和集中控制设备,使会议室彻底告别传统纸质文件,同时搭配音响系统设备使用,让会议设备的管理也更加轻松智能。

2
项目概括 >>
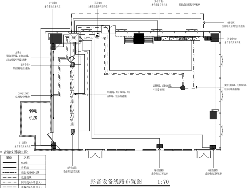
首先是会议厅的音响系统,本案是选择英国玛田Martin audio和英国乐富豪Wharfedale pro双音响品牌助阵。

会议音响系统
英国玛田主音箱*2只
英国玛田后置音箱*4只
英国乐富豪舞台返听音箱*2只
英国乐富豪低音炮*1台
Saibin功放*5台
MASU 数字处理器*1台
Vinal前级效果器*1台
BBS无线手持麦克风*1套
CSURPA无线会议麦克风*1套

会议视频系统
台湾晶元LED 200寸主屏*1套
Optoma副屏投影机*1台
Swein 副屏投影幕150寸*1套
Prolink HDMI线*60米

设计团队

工程师:郭生锋
个人所专所长智能家居、弱电、强电及安防监控;擅长私人影院、背景音乐的整体解决方案,从事影音智能行业十年,拥有专业扎实的智能家居功底,秉承严谨细致的工作态度,认真负责的处事方式,对待客户细心耐心,事无巨细要求尽善尽美,经手打造智能影院超百间。

工程监理:伦家健
个人所专所长智能家居、弱电、强电及安防监控;擅长私人影院、私人高尔夫的整体解决方案,从业四年以来,以严谨负责的工作态度,打造了很多专业案例,为用户提供有效率的口碑影院效果,以及超高满意度,深得业主好评。
项目配套
英国玛田音响作为企业视听活动和会议室专业音响,建设在广州中量这个项目中,“音箱英国玛田(Martin audio),是工程音响中的法拉利,其设计在商务办公会议系统和娱乐商演市场中有崇高的地位,也是各位明星如张学友等巡回演唱会御用的音响品牌,品牌无论是设计外观和产品性能都深得使用者喜爱。

方案中共使用六只玛田,2只做主音箱,4只做环绕和后置补音音响,在设计上拥有绅士风度,箱体更是全手工打磨,木箱外观简约质感好,刚性好、内阻高,抗潮耐温性能好,运用在会议厅,庄重典雅的形象非常符合会议室严谨、知性的性能特点。

在性能参数上,玛田平色散为80°,垂直色散为50°,同轴频率响应为 62Hz-20kHz +/- 3dB,扬声器在1米处计算的声压级峰值为128dB,功率处理为300W AES,峰值1200W。额定阻抗应为8欧姆,能达到平滑的特性,宽展的频响特点和良好的人声处理确保听众和演讲者都处于极为舒服的状态,听者不厌、讲者不累,低频饱满,弹性十足,人声磁性丰富。


玛田音箱,梯形吊装点位可以纵横双向多角度摆放安装,为空间提供便利性,使声音更加有指向性。

音响系统的第二个品牌,就是英国乐富豪,与英国玛田相同的是,同英伦风范的格调,并且是作为音响历史上的一家享誉达到90年、依然坚守音响文化信念的英国音响品牌,无论在技术上还是质量水平上都在发烧Hi-Fi界建立了英国老大哥品牌地位。

项目中壁挂式英国乐富豪系列,有着沉稳坚毅的特点,音质细腻,以听交响乐/古典乐/人声为主,低音不仅可以很大声还可以撑起颇有气势的场面,音场足够宽,深度表现超级好,在会议厅的使用上,全面胜任并气场全开,带来不凡的声音表现。

在显示系统上,设计了两套独立系统,分别是台湾晶元LED屏显示系统,以及Optoma 激光长焦投影机搭配Swein 150寸投影幕显示系统。

主屏台湾晶元200寸P2系列:分辨率高,能很好地表现高清的画质和丰富的色彩,显示效果好,非线性校正技术使图像细腻、色彩饱和、层次感强、流畅逼真,显示亮度高,可达1500cd/㎡以上,液晶屏和投影均无法达到,均匀度好,波长偏差可控制在± 2mm,色度和亮度一致性可达99%,平整度± 0.1mm,拼缝间隙<0.2mm,从而使色彩均匀性和一致性优异,宽广视角,表贴灯珠自身视角大,再采用高精度设备和先进工艺生产,使水平和垂直可视角度更加宽广。

另外,副屏Optoma 激光长焦投影机搭配Swein 150寸投影幕显示系统,它采用六段式色轮,2800流明色彩亮度,600000:1的高对比度,可实现 sRGB色域,带来超高清画质,色彩表现更加鲜艳靓丽,尽情享受精彩影集及显示画面,极速游戏等大画面的无线乐趣,画面色彩更真实更生动。

投影幕选用150寸美国施威超窄边画框幕,高清幕布,大视角,高清晰对比度画质,活动式安装挂扣,耐压绒布,超平整幕面,紧密转角无缝连接,安装简易,外形豪华美观大方。

为了打造精品,完善服务,全面提升企业的综合实力和竞争力,创造良好的经济效益和社会效益。首乐会议室智能会议系统,保障会议室有足够的传声增益,得到明亮清晰的扩声效果。也满足会议室人声、扩散性好、声场分布均匀、响度适宜、自然度好的要求,为参会人员营造一个多功能、全方位的智能无纸化会议平台。

